Newlands Way, Wallingford, OX10 9FF | 4 Bedrooms | 2 Bathrooms | 1 Reception | Offers Over, £475,000 (Freehold)
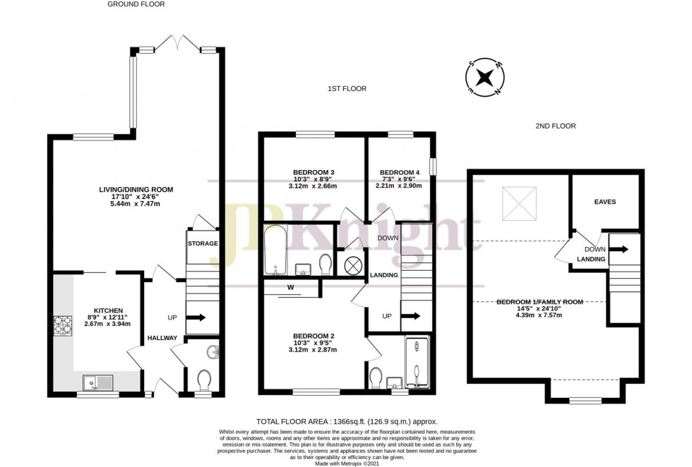
A well presented 3 storey end terrace home set within the sought after Cholsey Meadows development within walking distance of the train station. The ground floor offers a welcoming layout, with cloakroom, kitchen, spacious living/dining room with French doors to the garden. The first floor has 3 bedrooms and 2 bathrooms. The second floor has a spacious 25’ room with a versatile use. Externally the property benefits from a private rear garden and parking for two cars. There are 80 acres of communal grounds down to the river complete with a cricket pitch close by.
A well presented 3 storey end terrace home set within the sought after Cholsey Meadows development, in a pleasant position and within walking distance of the train station.
The ground floor offers a welcoming layout, featuring a cloakroom, well appointed kitchen, spacious rear living/dining room with French doors opening directly onto the garden. The first floor has 3 bedrooms and 2 bathrooms. The second floor has a spacious 25’ room with a versatile use.
Externally the property benefits from a private rear garden and parking for two cars. There are 80 acres of communal grounds down to the river complete with a cricket pitch close by.
Accommodation
Tenure - Freehold Council tax band - E Charges £607.00 per year.
The property is double/triple glazed with gas central heating to radiators and a Titan air circulation ventilation system.
Entrance Hall: Wood style floor, radiator, stairs to landing.
Cloakroom: White 2-piece suite, window to the front, radiator, down lighters, wood style flooring.
Kitchen: Window to the front, range of storage units, wooden worktops, gas hob, extractor hood and stainless-steel back plate, electric oven, integrated dishwasher, washing machine and fridge/freezer, wood style floor, down lighters, radiator and gas boiler.
Living/Dining Room: A bright spacious room with 9’ ceilings featuring French doors flanked by windows to the garden and two feature windows to the rear, wood style flooring, 3 radiators and under stair cupboard.
First Floor Landing: Window to side, radiator and airing cupboard.
Bedroom 2: Window to the front, wardrobes, radiator.
En-Suite Shower Room: White 3-piece suite including large shower cubicle, tiling, wood style flooring, radiator, downlighters.
Bedroom 3: Rear window, radiator.
Bedroom 4: Windows to rear and side, radiator.
Bathroom: White 3-piece suite, tiling, large mirror, wood style floor, radiator.
Second Floor Landing: Eaves cupboard housing Titan air circulation unit and storage space.
Bedroom 1/Family Room: Juliette balcony to the front, Velux window to the rear, storage cupboard and 2 radiators.
Outside
The property has two allocated parking spaces close by.
To the Rear: South-West facing garden extending to approx. 45’ abutting mature trees at the rear and farmland beyond. There is a paved area leading to lawn with flower/shrub and bamboo borders, timber fencing and gated rear access to the side and rear.
















