Gables End, London Road, Blewbury | 3 Bedrooms | 2 Bathrooms | 2 Receptions | Offers Over, £435,000 (Freehold)
A beautifully presented and characterful three-bedroom barn conversion set within the heart of the highly sought-after village of Blewbury. Full of warmth and original features including exposed brickwork, beams and a wood-burning stove, Gables End blends period charm with modern comfort to create a welcoming and easy home to live in. The ground floor offers a lovely open setting, with a cosy sitting room centred around the log burner and a bespoke Shaker-style kitchen opening into a bright dining/family area with breakfast bar. French doors lead directly to the private paved courtyard garden, ideal for summer dining and relaxed entertaining. Upstairs, the principal bedroom is a particularly generous space with Velux windows so you can watch the stars from bed, dressing area and ensuite bathroom with freestanding roll-top bath. Two further bedrooms and a modern shower room provide flexible accommodation for family life, guests or working from home.
A beautifully presented and characterful three-bedroom barn conversion set within the heart of the highly sought-after village of Blewbury. Full of warmth and original features including exposed brickwork, beams and a wood-burning stove, Gables End blends period charm with modern comfort to create a welcoming and easy home to live in.
The ground floor offers a lovely open setting, with a cosy sitting room centred around the log burner and a bespoke Shaker-style kitchen opening into a bright dining/family area with breakfast bar. French doors lead directly to the private paved courtyard garden, ideal for summer dining and relaxed entertaining.
Upstairs, the principal bedroom is a particularly generous space with Velux windows so you can watch the stars from bed, dressing area and ensuite bathroom with freestanding roll-top bath. Two further bedrooms and a modern shower room provide flexible accommodation for family life, guests or working from home.
Barn construction naturally keeps the house cool in summer while retaining heat efficiently in winter, making it both comfortable and economical throughout the year.
Outside, the enclosed courtyard garden offers a peaceful, low-maintenance space with attractive brick walling and planting borders. The property also benefits from a single garage with power and lighting and an allocated off-street parking space at the rear.
Blewbury is a friendly and thriving Downland village surrounded by beautiful countryside walks straight from the door. The village has a strong community feel, where neighbours say hello, the local pubs are welcoming and the well known Boxing Day village walk is a much loved tradition. Amenities include a primary school and nursery, village shop, farm shop, community Post Office and two family run pubs.
Nearby Didcot (approx. 4 miles) provides extensive shopping and leisure facilities, together with a mainline rail service to London Paddington in around 45 minutes. The village also sits close to the A34 for Oxford and Newbury/Reading making Gables End an ideal blend of rural living with excellent connectivity.
Tenure - Freehold Council tax band - E
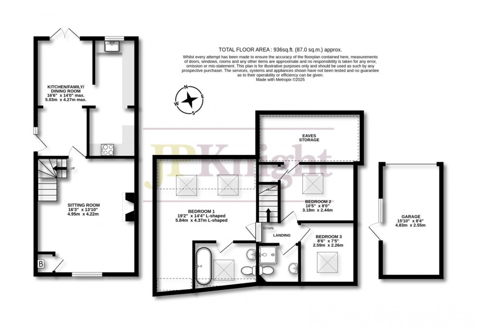
Accommodation
Front door to:
Kitchen/Breakfast/Family Room: 16’6 x 14’max.
Kitchen: Fitted with a range of storage units, worktops and Belfast sink, gas cooker with stainless steel backplate and extractor hood, dishwasher and appliance spaces. It has a beamed ceiling with downlighters and pelmet lighting, tiled floor, wide servery with exposed brickwork, window to rear.
Family/Breakfast Area: Wood floor, ceiling beams, 2 radiator sand French doors to garden.
Sitting Room: 16’3 x 13’10 The room has a window to the front, a beamed ceiling and wall timbers, brick fireplace with log stove, wood mantelpiece, stairs to landing and a cupboard housing the gas boiler.
Stairs to Landing: Loft access.
Bedroom 1: 19’2 x 14’4 (L-shaped) A spacious main bedroom with 2 velux windows, a dressing area, down lighters, radiator, ceiling beam and loft access.
En Suite Bathroom: Fitted with a white 2-piece suite including a freestanding roll-top bath, part tiles wall and tiled floor, velux window, down lighters and chrome: radiator.
Bedroom 2: 10’5 x 8’ Velux window, radiator, over-stair cupboard and wall timbers.
Bedroom 3: 8’6 x 7’5 It has a velux window, radiator, wall timbers and down lighters.
Shower Room: Fitted with a white 3-piece suite, tiling to floor and walls, radiator and down lighters.
Outside
To the Front: There is a small flower/shrub bed enclosed by timber.
Garage: 15’10 x 8’4 Up/over door, power, side door to a loggia.
Rear Garden: The property features a low maintenance courtyard garden mainly enclosed by brick walling. It is paved and features a flower border. A small loggia is attached to the side of the garage with door, side gate to the adjacent drive.

