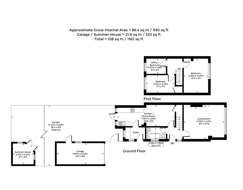
Blacklands Road, Benson, Wallingford, OX10 6NW | 3 Bedrooms | 1 Bathroom | 1 Reception | £415,000 (Freehold)
This immaculate and beautifully presented 3 bedroom extended semi detached home is available with a complete onward chain. Ideally situated in the heart of Benson, offering a light and airy feel throughout. Perfectly positioned within walking distance of the river and wide range of local amenities. To the front, a smart brick block driveway provides off road parking for up to three vehicles, while a garage to the rear offers additional storage.
This immaculate and beautifully presented 3 bedroom extended semi detached home is available with a complete onward chain. Ideally situated in the heart of Benson, offering a light and airy feel throughout. Perfectly positioned within walking distance of the river and wide range of local amenities. To the front, a smart brick block driveway provides off road parking for up to three vehicles, while a garage to the rear offers additional storage.
Tenure: Freehold Council Tax: C
Accommodation
The accommodation comprises of an entrance hall, spacious 16’ long living room with large window, bespoke built-in shelving on either side of a decorative feature fireplace.
The ground floor also has a family bathroom fitted with a modern 3 piece suite, complete with a shower over the bath, heated towel rail, part tiled walls and stylish wood effect flooring.
To the rear of the property, the dining room flows seamlessly into the kitchen, making it ideal for both family living and entertaining.
The kitchen is fitted with a range of wall and base units, double oven and has space for appliances, handy understairs storage. A door opens onto the garden with windows either side, allowing natural light to flood the space and provide an attractive outlook over the rear garden.
The kitchen benefits from a new roof installed 2024. Off the kitchen is the utility area.
The first floor landing leads to three bedrooms. The primary bedroom is located to the front of the property and is a generous size. There are two further bedrooms, a small double and a single / office.
The secure rear garden is a wonderful spot with a seated patio area, decorative fencing and steps leading to the lawn. Mature shrubs and planting compliment the garden nicely. Stepping stones lead to a lovely summerhouse which could be used seasonally for working or sitting out and enjoying the garden.

